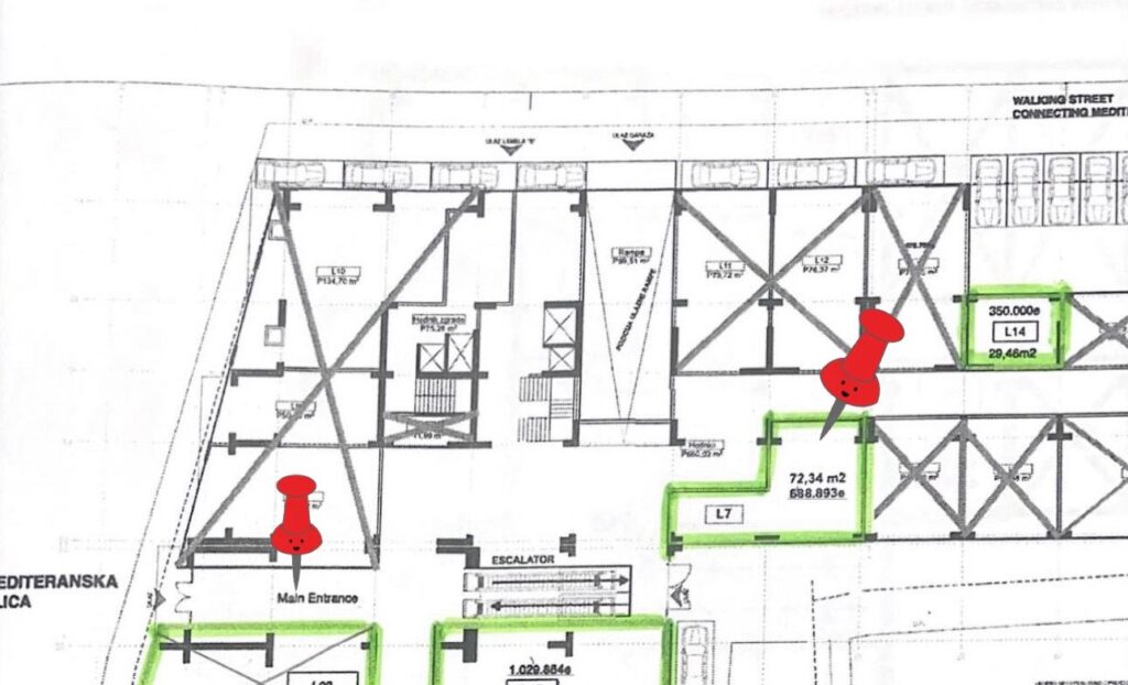
Poslovni prostor L7 ukupne površine 72 m² nalazi se na centralnom trgu shopping centra, na izuzetno frekventnoj lokaciji. Prostor ima dva ulaza – jedan sa unutrašnje strane shopping centra i drugi sa spoljne strane, okrenut ka promenadi. Idealan je za različite vrste biznisa: prodavnicu, kafić, restoran, uslužne djelatnosti ili kancelarijski prostor. Postoji mogućnost formiranja otvorene terase, što ga čini savršenim za ugostiteljske objekte. Neposredno uz prostor nalaze se eskalator i dva lifta, što obezbjeđuje dodatnu vidljivost i visok protok posjetilaca.
U odnosu koliko novca investirate u startu po potpisivanju ugovora, ostvarujete mogućnost većeg popusta i niže cijene!
Cijena poslovnog prostora: 688.000 eura
***Ocekivana cijena za izdavanje na mesečnom nivou: 7.000 eura



Schedule of payments and discounts for the apartment:






Ako želite saznati više o dostupnim jedinicama ili zakazati obilazak — uživo ili online — ostavite svoje kontakt podatke.
Javićemo vam se u najkraćem roku, na način koji vam najviše odgovara..
Discover leading properties and secure your dream home with us. Expert guidance and support at every step.