Porto Budva Kompleks ima površinu 45.000 m² ,najveći je objekat u Budvi i nalazi se u samom centru grada na 1.liniji.
U okviru kompleksa nalazi se prostrani, luksuzni tržni centar od 8.000 m² koji predstavlja lobi objekta, najveći Spa & Wellness centar u Crnoj Gori površine 3.500 m², sa otvorenım I zatvorenım bazenıma I svim propratnim sadržajima, Kazino na dva sprata površine 2300 m² i rezidencijalni deo sa 300 luksuznih apartmana koji će se rentirati u okviru hotel PORTO BUDVA sa 5 zvezdica.
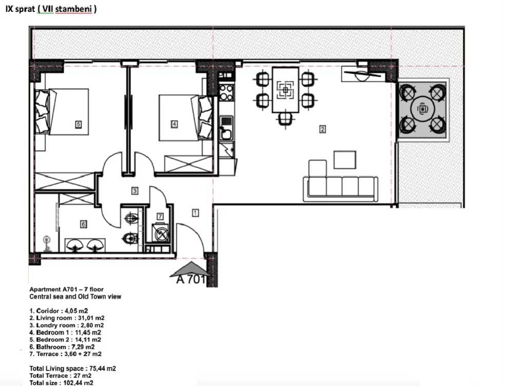
Panoramski pogled na more i Stari Grad – Dvosoban Stan A701 na 9. spratu, površine 75.44 m² + 27 m² terasa (ukupno: 102.44 m²), sa prostranim dnevnim boravkom, sa dvije spavaće sobe, jednim kupatilom, deganžmanom i perionicom veša i prostranom terasom.
U odnosu koliko novca investirate u startu po potpisivanju ugovora, ostvarujete mogućnost većeg popusta i niže cijene!
Cijena stana: 676.104 eura
*** Očekivani prihod od rentiranja na dnevnom nivou za stan B803 – 75.000 eura godišnje ( minimum 100 noćenja )
Stan se sastoji od:
Hodnik: 4,05 m²
Dnevni boravak: 31,01 m²
Degazman: 2,80 m²
Spavaća soba: 11,45 m²
Spavaća soba 2: 14,11 m²
Kupatilo: 7,29 m²
Degazman 2: 1,13 m²
Terasa: 3,60 m2 + 27 m²
Povrsina stana : 75,44 m²
Terasa : 27,59 m²
Ukupna površina stana : 102,44 m²
Sobe:
Kupatilo:
Fasada:












Ako želite saznati više o dostupnim jedinicama ili zakazati obilazak — uživo ili online — ostavite svoje kontakt podatke.
Javićemo vam se u najkraćem roku, na način koji vam najviše odgovara..
Discover leading properties and secure your dream home with us. Expert guidance and support at every step.