U ponudi je moderno dizajniran jednosoban apartman #B004, smešten u ekskluzivnom i jedinstvenom VIP naselju koje Vam nudi mir, udobnost i nesvakidašnjost. Odlično strateško pozicioniranje odmarališta na samo 10 minuta od Budve, 10 minuta od Tivta i Kotora kao i aerodroma Tivat.
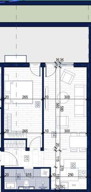
Površina: 41.17m² + 18m² zeleni balkon
Sprat: Prizemlje
Izgled:
1 spavaća soba
1 kupatilo
Prostrani dnevni boravak sa trpezarijom, kuhinjom i direktnim izlazom na terasu



Cijena stana uz 100% plaćanja: 140.642€
Cijena na odloženo plaćanje: 150.076€

CIJENA GARAŽNOG MJESTA: 15.000€
Jedinstveno VIP naselje ovog tipa sa 12 zgrada i 15 vila sa bogatim sadržajem: sportski tereni, bazeni, restoranima, kafićima, spa centrom, organizovati šatl prevoz do plaže…
U okviru naselja imamo 15 vila sa bazenima na prodaju.
Odlična strateška pozicioniranost resorta na samo 10 minuta udaljenosti od Budve, 10 minuta udaljenosti od Tivta i Kotora kao i aerodroma Tivat. Objekat ima recepciju i mogućnost izdavanja stanova tokom čitave godine. Godišnja dobit od izdavanja 7%-10%.
Projekat je u početnoj fazi izgradnje.
Pri investiranju u početnoj fazi izgradnje imate mogućnost ostvarivanja profita do 100% od preprodaje stana na kraju izgradnje objekata.
Kvalitet naše gradnje možete videti u našim već izgradjenom i useljenom objektima u Budvi, Bečićima i Rafailovićima, kao i ponude naših drugih objekata.
Mogućnost plaćanja na rate do kraja izgradnje!
Planirani završetak radova zgrade A: Septembar 2025
Planirani završetak radova zgrade B: Septembar 2026
Planirani završetak radova zgrade C: Oktobar 2027.
Lokacija VIP Rizort : https://maps.app.goo.gl/8KfQM5Gfkscr2cZd8?g_st=com.google.maps.preview.copy
Katalog stanova VIP Rizort kod plaže Jaz : https://drive.google.com/file/d/14m-AuolIRG5IRzlC6CMeI6cJr_xQRt0n/view
Ponuda i Cenovnik Lastva novo VIP naselje možete videti na linku: https://budvainvestmentmontenegro.me/listings/?region=lastva&projekat=vipresort
Za sve stanove imate napisane cene sa popustom za avansno plaćanje i cene za placanje na odloženo. Pri plaćanju na odloženo potrebno je platiti 50% po ugovoru, dok preostalih 50% možete plaćati na mesečne ili tromesečne rate do kraja izgradnje.
Nekretninu kupujete direktno od investitora, bez troškova agencije, bez poreza na promet nepokretnosti u iznosu od 3-5%. U cene stanova su sa uključenim PDV-om.
Svim klijentima pružamo usluge opremanja stanova po sistemu ključ u ruke sa nameštajem i tehnikom, održavanje stanova i izdavanje tokom čitave godine.
Discover leading properties and secure your dream home with us. Expert guidance and support at every step.